Passion Fruit Juice Factory
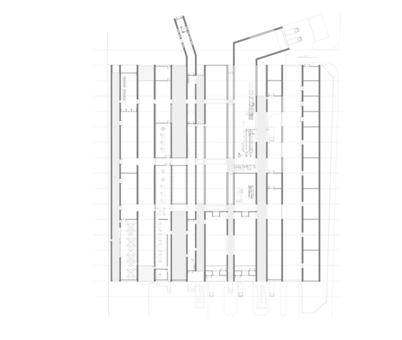
Located on a mango farm along the Malindi–airport highway on Kenya’s coast, this project functions as a fruit pressing factory for mango and passion fruit, while also serving as a social hub for workers, a juice storage facility, and a mango ripening center. To accommodate future growth without compromising clarity or functionality, the design expands inward from a defined square perimeter. Built with local coral stone, a series of parallel walls with varying heights create flexible interior spaces. Roofs of different materials and levels allow for rainwater harvesting and natural ventilation from sea breezes. Outdoor spaces are integrated to provide light, airflow, social areas, and room for future expansion.
In Collaboration With: Hashim Sarkis Studios
Scroll down





